
TRILOCALE A LECCO.
In complesso residenziale ristrutturato, attualmente accatastato come ufficio sarà oggetto di un cambio di destinazione d'uso in appartamento a cura e spese della parte veditrice.
E' ideale per la realizzazione di un prestigioso appartamento nel cuore dell'isola pedonale, la cui collocazione urbanistica permette il collegamento alla stazione ferroviaria della città senza utilizzare autovetture o mezzi pubblici.
Fruisce di ampi parcheggi e autosilos cittadini a pochi passi.
Con un ottimo rapporto qualità prezzo, rappresenta anche una buona opportunità di investimento anche per la locazione di prestigio.
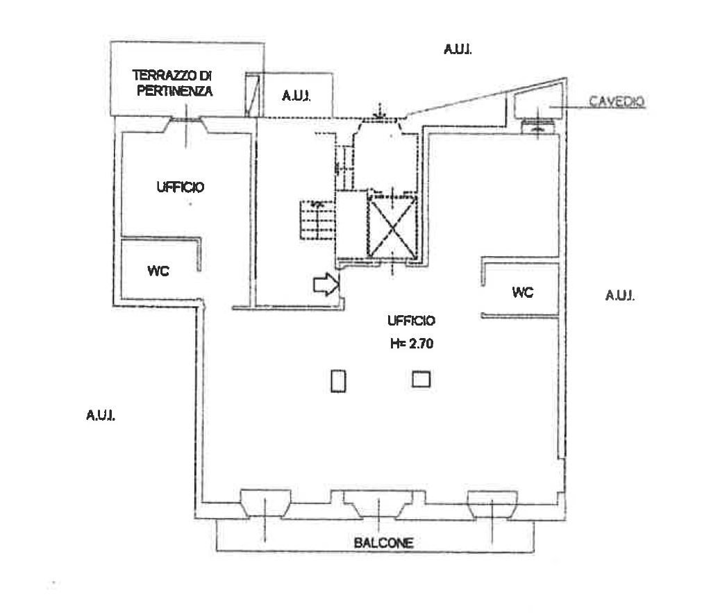
COMPOSIZIONE:
Posto al piano primo servito da ascensore, si compone di ingresso, ampio locale open space, tre locali, due bagni, terrazzo retrostante e balcone affacciato sulla centralissima via Roma.
SUPERFICIE:
Sviluppa una superficie commerciale di circa Mq. 120
FINITURE:
Realizzato in signorile contesto ristrutturato negli anni 2000, è stato ultimato con finiture extra capitolato e materiali idonei alla location, con cura in ogni piccolo particolare.
Beneficia di una modularità anche per la distribuzione degli spazi.
ARREDAMENTO:
Viene proposto NON Arredato
DISPONIBILITA':
A Partire da Marzo 2026.
RISCALDAMENTO E CLIMATIZZAZIONE:
Riscaldamento e raffrescamento autonomo con caldaia turbo esterna e pompa di calore radiatori.
Classe energetica B, indice di prestazione energetica 100.29.
Rif. 109
Per la tutela della Privacy, in alcuni casi su esplicita richiesta del venditore, gli indirizzi sono indicativi.
Per informazioni chiama subito Ufficio 0341.353.650. Cell. 335.840.1538.
- Maggiori Dettagli: Balcone, Porta Blindata, Cucina Abitabile, Animali Domestici , Centro Storico, Terrazzo Panoramico, Fermata Bus
per chi desidera un investimento a due passi dal lungo lago. monolocale completamente ristrutturato nel cuore della città. posto in via leonardo da vinci a due passi dal centro storico della città, il che permette di raggiungere tutti i servizi e la stazione ferroviaria senza utilizzare auto o…
per chi desidera un investimento a due passi dal lungo lago. monolocale completamente ristrutturato nel cuore della città. posto in via leonardo da vinci a due passi dal centro storico della città, il che permette di raggiungere tutti i servizi e la stazione ferroviaria senza utilizzare auto o…
bilocale con mansarda. in complesso residenziale posto in corso san michele del carso, nel quartiere di rancio laorca. ideale per giovani coppie, per chi cerca un investimento da mettere a reddito e per chi ama la tranquillità, i piccoli contesti, la vicinanza al verde ed alle montagne. e'…