
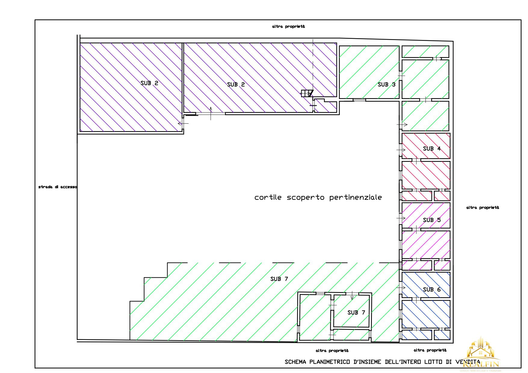
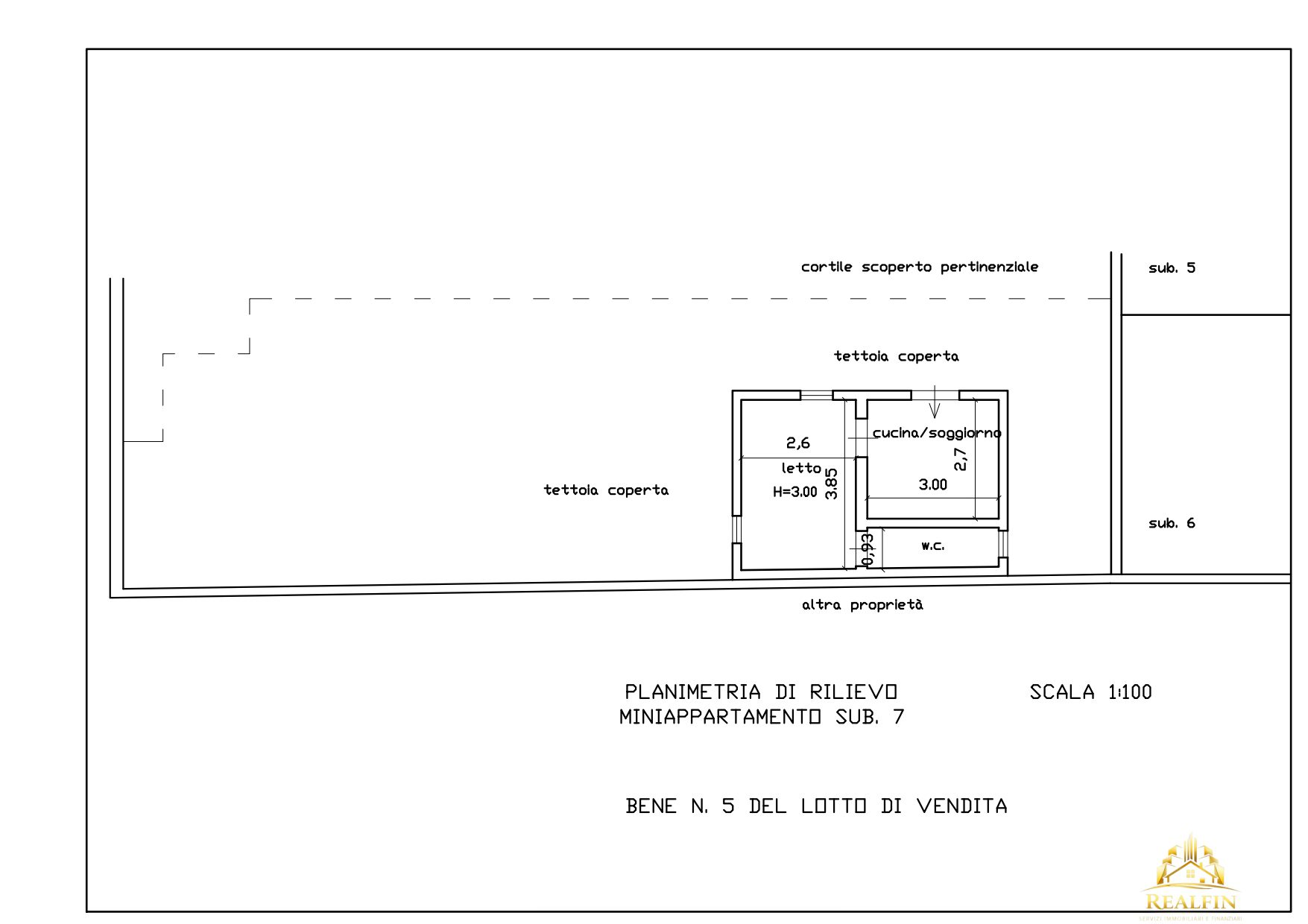
Situato ad Afragola, questo appartamento al piano terra offre una soluzione abitativa interessante per chi cerca un immobile in una zona periferica ma ben collegata. L'unità immobiliare si trova in via Murillo Fatigati, I traversa. L'appartamento è caratterizzato da una superficie netta di circa 47 mq e un'altezza interna di 3 metri, offrendo spazi ben distribuiti e funzionali. L'immobile è composto da un mini appartamento al piano terra, ideale per chi desidera una soluzione compatta ma confortevole. La proprietà include anche una quota indivisa di un cortile scoperto di circa 62 mq, che offre uno spazio esterno comune utile per diverse attività. Nonostante la posizione decentrata rispetto al centro di Afragola, l'appartamento è più vicino al comune di Casalnuovo di Napoli, garantendo comunque un buon accesso ai servizi e alle infrastrutture della zona.
Immobile posto in vendita dal Tribunale. Vieni a scoprire come acquistare prima dell'asta. Annuncio finalizzato alla vendita del servizio di assistenza per un acquisto sicuro e conveniente.
piena ed intera proprietà dell'unità immobiliare, sita in afragola (na), alla via nunziatella n. 30 (già 25), piano terra censito al nceu del afragola (na) al foglio 21, particella 635, sub. 1. l'abitazione, a cui si accede sia dalla pubblica via sia dal cortile interno del fabbricato, è composta…
afragola - via rosselli proponiamo in vendita appartamento di circa 45 mq, situato al primo piano all'interno di un contesto di corte. l'immobile è così composto: cucina camera da letto piccola cameretta bagno balcone completa la soluzione il diritto di cortile, elemento utile e comodo…
super occasione per investimento - afragola in via nicola setola proponiamo in vendita due appartamenti attigui, perfetti per chi cerca una soluzione che renda da subito. hai a disposizione: - primo appartamento: grande stanza con bagno e balcone. - secondo appartamento: cucina, due camere,…