
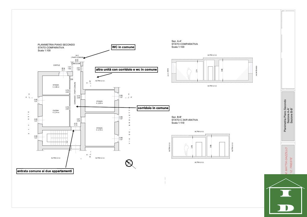
Vendesi in via Broletto un'appartamento attualmente locato con canone concordato appena rinnovato (3+2). Canone mensile € 300,00 più spese condominiali. L'appartamento ha la particolarità di avere un bagno comune con un'altro appartamento che sta sullo stesso corridoio. Guardando la pianta (vedi allegato) l'immobile si compone di una cucina abitabile, due camere da letto, una camera media dove è stato ricavata una doccia e stireria e un wc in comune. Il riscaldamento è autonomo. Classe energetica G. Spese condominiali pari a 60 € mensili. I dati e le informazioni presenti nell'annuncio hanno carattere esclusivamente informativo e non costituiscono elemento contrattuale.
vendesi nuda proprietà di un'appartamento in zona campi elisi. si trova al primo piano con vista aperta. composto da: ingresso, ripostiglio, camera matrimoniale, soggiorno, bagno con finestra, sala da pranzo con poggiolo e cucinino. riscaldamento centralizzato. effettuati lavori di efficientamento…
vendesi a roiano un appartamento con due camere. ci troviamo in via stock di fronte alla vecchia fabbrica di liquori. qui si possono trovare tutti i servizi per la persona come farmacia, supermercati, edicole, panetterie, ristoranti, pizzerie. l'appartamento è sito al primo piano rialzato di una…
bilocale in vendita in centro a trieste, in via cesare battisti. situato al terzo piano di un palazzo storico, questo appartamento di 101 mq., catastali, è l'ideale per chi desidera una residenza elegante e ben posizionata. con una camera da letto, un bagno, una cucina abitabile e un ampio…