
Meraviglioso appartamento di 115 mq circa, situato in posizione dominante e super panoramica a Baja Sardinia, con una splendida vista su tutto l'arcipelago della Maddalena.
Caratteristiche:
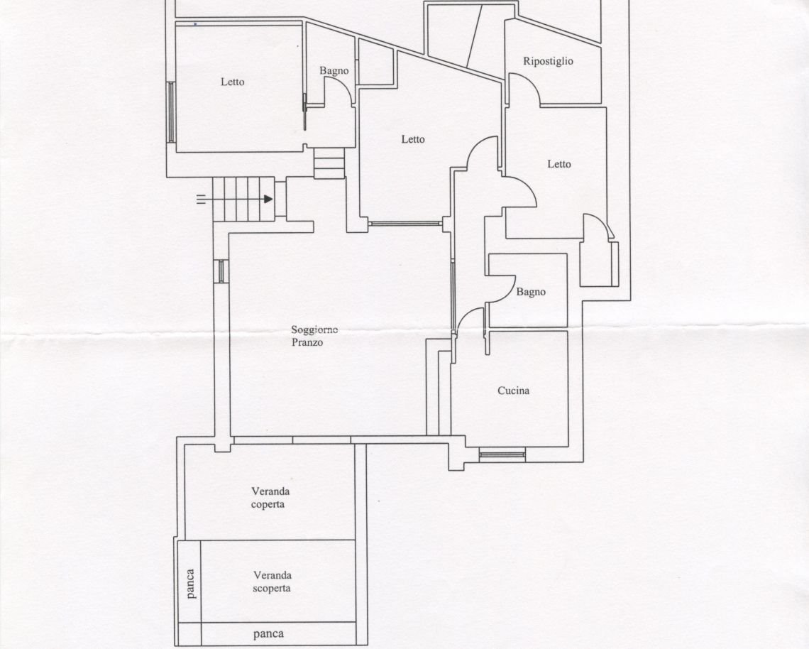
- L'appartamento è posto al piano alto con ascensore e ha un ingresso indipendente.
- Composto da un ampio soggiorno con uscita sulla terrazza vista mare di 25 mq.
- Una cucina.
- Tre camere da letto.
- Due bagni.
- Ripostiglio.
- L'appartamento è in ottimo stato e subito abitabile.
Servizi:
- Piscina condominiale.
- Ampio parcheggio.
Vantaggi:
- Posizione dominante e super panoramica con una splendida vista su tutto l'arcipelago della Maddalena.
- Ottimo investimento immobiliare sia per essere vissuto e goduto, sia per essere messo a reddito con ottimi risultati finanziari.
- Stato di manutenzione ottimo e comodità ai servizi e al mare, che dista solo 100 metri.
Posizione:
- Situato a Baja Sardinia, Sardegna.
- A soli 100 metri dal mare - Maggiori Dettagli: Vista panoramica, Vista mare, Mare a piedi, Vicino a ristorante, Vicino ai servizi, Aeroporto entro 1 ora, Terrazza, Piscina condivisa, Aria condizionata, Veranda, Accesso con l'auto
appartamento a porto cervo, costa smeralda, splendido appartamento di 66 mq circa, direttamente sul mare, all'interno dell'esclusivo e elegante complesso del consorzio calo del faro. caratteristiche: - l'appartamento è composto da un luminosissimo soggiorno con terrazza vivibile e godibile di 15…
porto cervo - marina | condominio il sestante: elegante bilocale fronte porto con veranda coperta e vista esclusiva all'interno del rinomato condominio il sestante, nel cuore della marina di porto cervo, proponiamo in esclusiva un raffinato appartamento bilocale con affaccio diretto sul porto e…
direttamente fronte mare che si raggiunge con un accesso diretto dalla casa alla spiaggia tramite un sentiero che attraversa un prato all'inglese, delizioso attico di circa mq 80 con terrazza coperta ed una meravigliosa vista mare a 180 gradi su tutto il golfo. l'appartamento indipendente è posto…