
VENDITA IN ESCLUSIVA Immobiliare Celardo.
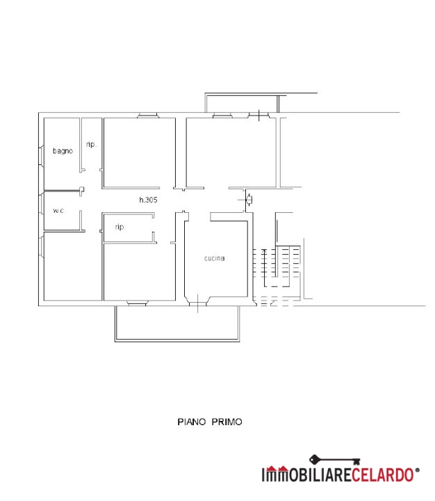
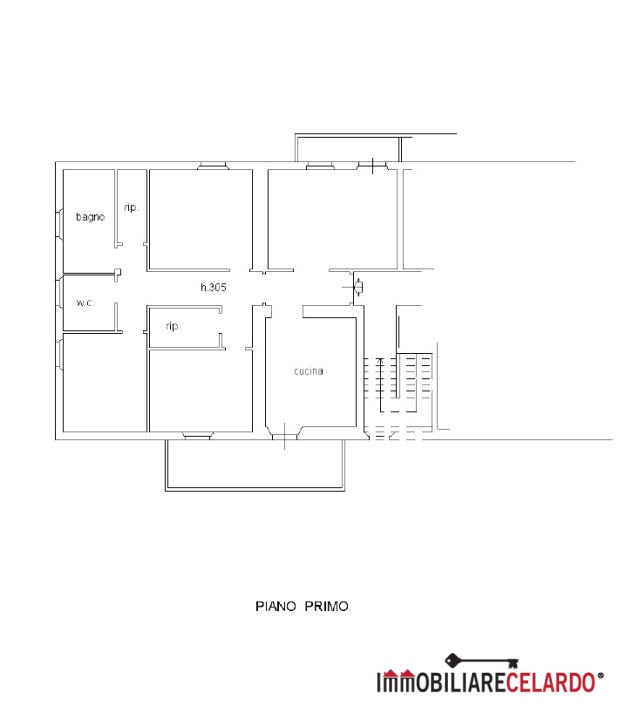
Colle Di Val d'Elsa (SI), a pochi minuti da Le Grazie, in prima campagna, porzione di piccolo casolare, posta al piano primo di mq 135.
L'appartamento ha ingresso semi indipendente, in comune solo con un'altra abitazione, non c'è condominio e si compone di:
Soggiorno con camino, cucina abitabile, tre camere, due bagni, 2 ripostigli e 2 terrazze, di cui una abitabile coperta, con vista sulle campagne circostanti. La caldaia è stata sostituita recentemente.
L'immobile gode di una meravigliosa vista panoramica.
Sono presenti tutte le utenze (metano, acqua comunale, corrente).
Classe energetica in lavorazione.
www.immobiliarecelardo.it
- Maggiori Dettagli: Cucina Abitabile, Camino
vendesi nel comune di colle di val d'elsa (si), in zona semicentrale, monolocale di mq 36 posto al piano primo senza ascensore. l'immobile è composto da soggiorno/cucina con divano letto, bagno, ripostiglio e ampia terrazza di mq 35. classe energetica in lavorazione. la nostra agenzia è…
vendesi nel comune di colle di val d'elsa (si), in zona centrale, appartamento di mq 40 posto al piano primo senza ascensore. l'immobile è così composto: cucina, camera e bagno. n.b: nel prezzo di vendita è compresa tutta la mobilia. classe energetica in lavorazione. la nostra agenzia è…
vivi nel cuore del borgo di castelsangimignano, a due passi da san gimignano e colle di val d'elsa, in un appartamento di 75 mq con balcone e garage. luminoso e ben distribuito, questo immobile di 4 locali e 2 camere da letto è ideale per una famiglia o per chi desidera uno spazio extra per gli…