
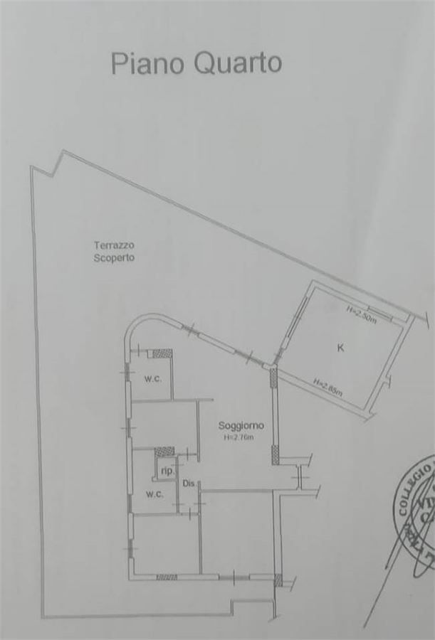
Sogna di vivere in un attico panoramico nuovo di zecca con terrazzo a livello in provincia di Caserta ,a San Felice a Cancello?
Questa è la tua occasione! In uno stabile di recente costruzione con ascensore, troverai questo confortevole appartamento con 4 locali, 3 camere da letto, 2 bagni, terrazzo e balcone.
Inoltre, un comodo garage con 2 posti auto e una cantinola per conservare i tuoi oggetti preziosi. L'interno è perfetto, non ci sono bisogno di ristrutturazioni. Ma la vera chicca è il meraviglioso terrazzo a livello, dove potrai organizzare feste o semplicemente goderti il tuo tempo libero,utilizzando anche la cucina abitabile esterna ricavata e verandata di circa 25 mq .
Gli amanti degli animali avranno spazio sufficiente per i loro amici a quattro zampe. L'attico è dotato di climatizzazione e riscaldamento autonomo, e dal salone si accede a una cucina esterna verandata per sfruttare al meglio il terrazzo. Non perdere l'opportunità di vivere in un immobile unico, con tutte le caratteristiche che desideri. Fissa subito un appuntamento e vivi le emozioni che questo attico ti regalerà! - Maggiori Dettagli: Terrazzo a Livello, Sistema di allarme, Climatizzato, Balconi, Esposizione esterna, Tripla Esposizione, Vista panoramica, Porta blindata, Aria condizionata, Cancello elettrico, Citofono, Riscaldamento autonomo, Cucina Abitabile, Caldaia, Luci di Emergenza, Terrazzo, Box auto, Cantinola