
APPARTAMENTI a Oggiono. - Rif. 208 -
Appartamenti in fase di progettazione con prezzi a partire da Euro 215.000.
Consegna primavera 2028.
GIARDINI di proprietà, taverne e mansarde, riscaldamento centralizzato contabilizzato a pavimento con caldaia a condensazione ed impianto WMC di ventilazione meccanica, pompa di calore, isolamenti termo acustici, pannelli solari e fotovoltaici, finiture signorili a scelta.
Piccolo contesto in zona tranquilla e soleggiata, con varie tipologie di appartamenti per soddisfare le vostre più ampie esigenze familiari.
Riscaldamento a pavimento centralizzato contabilizzato a pavimento con caldaia a metano coadiuvati da una pompa di calore caldo e freddo.
Classe energetica Classe energetica A4. Rif. 208.
Per info chiama subito Cell. 335.840.1538. Ufficio 0341.35.36.50.
Per la tutela della Privacy, in alcuni casi su esplicita richiesta del venditore, gli indirizzi sono indicativi.
- Maggiori Dettagli: Vista panoramica, Giardino Privato, Balcone, Box Singolo, Porta Blindata, Cassaforte, Taverna, Animali Domestici , Giardino Alberato , Fermata Bus, Terrazzo Panoramico
appartamenti a oggiono. - rif. 208 - appartamenti in fase di progettazione con prezzi a partire da euro 215.000. consegna primavera 2028. giardini di proprietà, taverne e mansarde, riscaldamento centralizzato contabilizzato a pavimento con caldaia a condensazione ed impianto wmc di ventilazione…
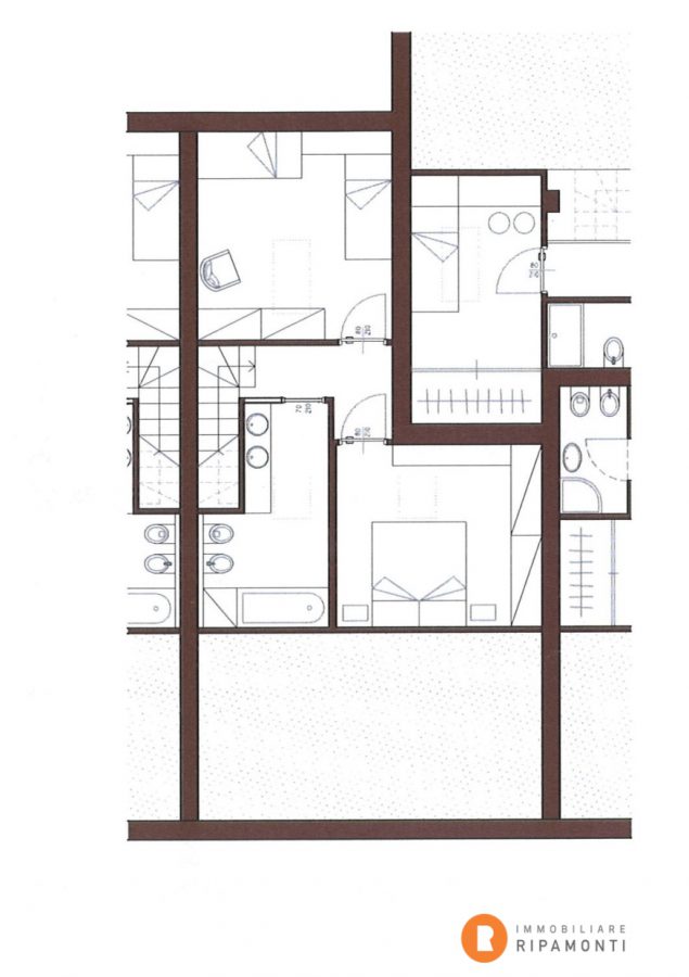
appartamento ad oggiono. - rif. 208a - trilocale in fase di progettazione con giardino di proprietà. consegna primavera 2028. posto in piccolo contesto, si compone di ingresso, soggiorno con angolo cottura, due camere, disimpegno notte e bagno. box singolo al piano s1, compreso nel prezzo…
appartamento ad oggiono. - rif. 208a - trilocale in fase di progettazione con giardino di proprietà. consegna primavera 2028. posto in piccolo contesto, si compone di ingresso, soggiorno con angolo cottura, due camere, disimpegno notte e bagno. box singolo al piano s1, compreso nel prezzo…