
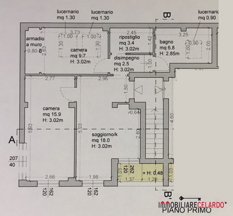
Vendesi nel Comune di Colle di Val d'Elsa (SI), in zona tra Gracciano e Campolungo, APPARTAMENTO posto al piano primo di mq 71 con ingresso condiviso solo con un'altra unità abitativa.
L'immobile è così composto:
soggiorno/pranzo con angolo cottura e balcone, una camera matrimoniale, una singola con lucernari, bagno e ripostiglio.
L'immobile verrà consegnato totalmente ristrutturato (impianti idraulici, impianti elettrici, riscaldamento, infissi ecc..).
Possibilità di acquistare al grezzo a € 100.000 + IVA con recupero in 10 anni di circa 40.000€ sui lavori da effettuare, con bonus ristrutturazioni ed ecobonus.
Classe energetica in lavorazione.
La nostra agenzia è strutturata per fornirvi, gratuitamente, assistenza per la richiesta di mutuo, notaio, tecnici e quanto necessario tramite gli istituti bancari ed i professionisti che collaborano con noi.
www.immobiliarecelardo.it
vendesi nel comune di colle di val d'elsa (si), in zona semicentrale, monolocale di mq 36 posto al piano primo senza ascensore. l'immobile è composto da soggiorno/cucina con divano letto, bagno, ripostiglio e ampia terrazza di mq 35. classe energetica in lavorazione. la nostra agenzia è…
vendesi nel comune di colle di val d'elsa (si), in zona centrale, appartamento di mq 40 posto al piano primo senza ascensore. l'immobile è così composto: cucina, camera e bagno. n.b: nel prezzo di vendita è compresa tutta la mobilia. classe energetica in lavorazione. la nostra agenzia è…
vivi nel cuore del borgo di castelsangimignano, a due passi da san gimignano e colle di val d'elsa, in un appartamento di 75 mq con balcone e garage. luminoso e ben distribuito, questo immobile di 4 locali e 2 camere da letto è ideale per una famiglia o per chi desidera uno spazio extra per gli…