
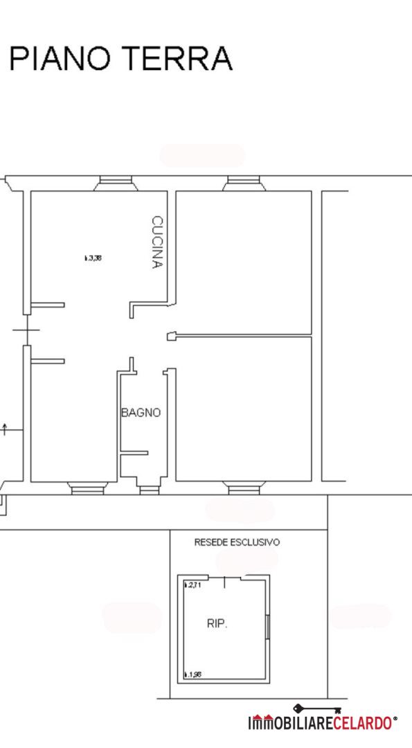
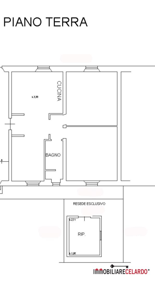
Vendesi nel Comune di San Gimignano (SI), a pochi passi dal centro, APPARTAMENTO di mq 82 posto al piano terra.
L'immobile è così composto:
soggiorno/cucina, due camere matrimoniali e bagno.
Presente un magazzino di mq 6.
L'appartamento è totalmente ristrutturato (impianti, pavimenti, bagno e porte).
Classe energetica in lavorazione.
La nostra agenzia è strutturata per fornirvi, gratuitamente, assistenza per la richiesta di mutuo, notaio, tecnici e quanto necessario tramite gli istituti bancari ed i professionisti che collaborano con noi.
www.immobiliarecelardo.it
vendesi nel comune di san gimignano (si), appartamento posto al piano secondo di mq 75 con terrazzo panoramico. l'immobile è così composto: ampio soggiorno, cucina abitabile, una camera matrimoniale, una camera singola, un bagno e terrazzo con vista panoramica. al piano terra è presente una…
la casa è posta al piano primo di una piccola palazzina di due piani , internamente è stata totalmente ristrutturata ed oggi si presenta con finiture tradizionali come soffitti a travi in legno. l' appartamento accoglie nella cucina ampia e luminosa che affaccia sul panorama verdeggiante che…
un gioiello nel cuore di san gimignano! questo delizioso appartamento di 30 mq, situato in un antico palazzo del centro storico medievale , è l'ideale per chi desidera immergersi nella bellezza e nella storia del centro storico. completamente arredato , dispone di un' ampia camera matrimoniale, un…