
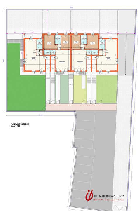
Res Viktoria - Il complesso residenziale dei tuoi sogni. In una posizione privilegiata nel cuore di Ca' degli Oppi (Fraz di Oppeano), sorge il Residence Viktoria. Questo nuovo progetto immobiliare offre appartamenti di alta qualità, perfetti per una vita comoda e rilassante. Ogni abitazione, sia al piano terra che al primo piano, ha un ingresso indipendente per garantire la massima privacy. Gli appartamenti al piano terra vantano ampi giardini, ideali per godere dei momenti all'aperto, un'ampia zona giorno, una camera matrimoniale e un bagno, oltre ad un terrazzo retrostante. Al piano interrato, collegato da una scala dalla zona giorno, sono presenti una cantina di 28 mq e un garage di 30 mq. Al piano terra ci sono anche due trilocali con giardino e terrazzo retrostante, entrambi con accesso diretto dalla zona giorno alla cantina e al garage. Al piano superiore, ci sono due bilocali con ampi terrazzi, e due appartamenti su due livelli con tre camere da letto, doppi servizi e un ampio terrazzo. Non perdere l'opportunità di visitare questo splendido residence, i progetti sono disponibili presso i nostri uffici. Non lasciarti sfuggire questa occasione unica! Prezzo: € 190.000. Piano terra. - Maggiori Dettagli: Porta blindata, Sanitari sospesi, Cancello elettrico, Tapparelle in alluminio, gres porcellanato, Porte a battenti, Zanzariere, Serramenti in PVC doppio vetro
stai cercando una nuova casa nel cuore di ca' degli oppi? allora non perdere l'opportunità di vivere nel nuovissimo residence viktoria. progettato per offrire il massimo comfort e privacy, questo piccolo complesso residenziale è composto da appartamenti di 2 e 3 locali, tutti dotati di ingresso…
vivi nel cuore di ca' degli oppi in un lussuoso duplex di prossima costruzione. il residence viktoria ti offre il meglio della vita residenziale con la comodità di un ingresso indipendente per ogni abitazione. goditi la tua privacy con un ampio giardino privato e un terrazzo retrostante, ideali per…