
APPARTAMENTO ad Oggiono. - Rif. 208B -
TRILOCALE in fase di progettazione con GIARDINO di proprietà da circa 730 Mq.
Consegna primavera 2028.
Posto in piccolo contesto, si compone di ingresso, soggiorno, cucina separata, disimpegno notte, due camere, bagno.
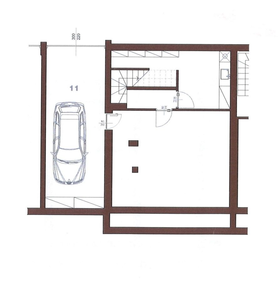
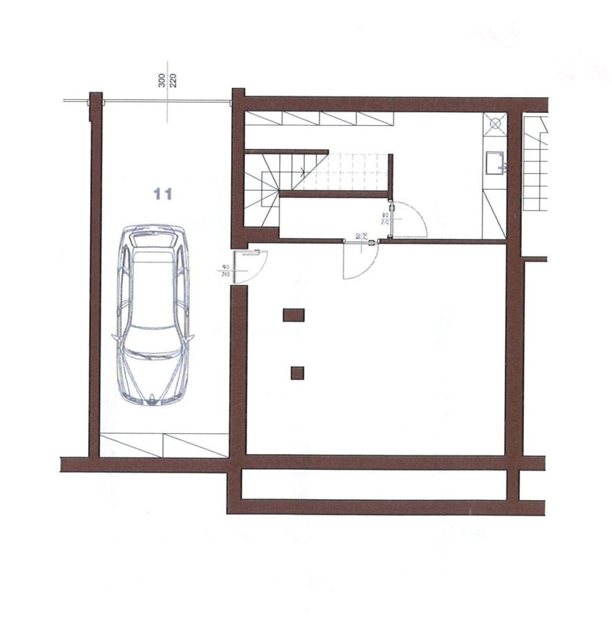
Al piano S1 direttamente collegato con scala interna, grande taverna, e lavanderia.
Completa la proposta un box doppio.
Riscaldamento centralizzato contabilizzato a pavimento con caldaia a condensazione e pompa di calore, integrato da impianto WMC di ventilazione meccanica, isolamenti termo acustici di ultima generazione, pannelli solari e fotovoltaici, finiture di pregio.
Classe energetica A4, Rif. 208.B
Per info chiama subito Cell. 335.840.1538. Ufficio 0341.35.36.50.
Per tutelare la Privacy, in alcuni casi su esplicita richiesta del venditore, gli indirizzi sono indicativi.
- Maggiori Dettagli: Vista panoramica, Giardino Privato, Porta Blindata, Cassaforte, Cucina Abitabile, Taverna, Climatizzato, Animali Domestici , Giardino Alberato , Fermata Bus
appartamenti a oggiono. - rif. 208 - appartamenti in fase di progettazione con prezzi a partire da euro 215.000. consegna primavera 2028. giardini di proprietà, taverne e mansarde, riscaldamento centralizzato contabilizzato a pavimento con caldaia a condensazione ed impianto wmc di ventilazione…
appartamento ad oggiono. - rif. 208a - trilocale in fase di progettazione con giardino di proprietà. consegna primavera 2028. posto in piccolo contesto, si compone di ingresso, soggiorno con angolo cottura, due camere, disimpegno notte e bagno. box singolo al piano s1, compreso nel prezzo…
appartamenti a oggiono. - rif. 208 - appartamenti in fase di progettazione con prezzi a partire da euro 215.000. consegna primavera 2028. giardini di proprietà, taverne e mansarde, riscaldamento centralizzato contabilizzato a pavimento con caldaia a condensazione ed impianto wmc di ventilazione…