
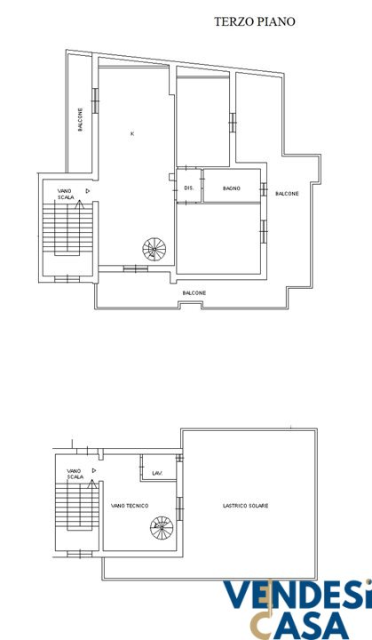
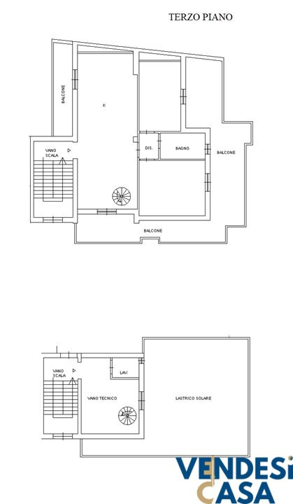
In una tranquilla zona residenziale del rione Canneto, si trova questo accogliente appartamento in vendita. Si compone di tre vani, di cui un salone doppio con cucinotto, due camere da letto ed un bagno, ideale per ospitare una famiglia o per chi desidera ampi spazi. L'immobile si presenta in ottime condizioni e offre un'incantevole vista dal suo ampio terrazzo di 50 mq. circa, raggiungibile attraverso il sovrastante vano tecnico collegato direttamente all'abitazione attraverso una scala a chiocciola, perfetto per rilassarsi e godersi il panorama. Inoltre, è dotato di un ampio balcone terrazzato, perfetto per colazioni all'aperto o per godersi il tramonto. La soluzione è completa di posto auto scoperto. Situato al terzo ed ultimo piano di una palazzina sprovvista di ascensore, questo appartamento ti regalerà una piacevole sensazione di privacy e tranquillità. - Maggiori Dettagli: Porte scrigno, Sprovvisto di ascensore, Porta blindata, Predisposizione climatizzatori, Cancellate di protezione
appartamento di due vani + acc. composto da ingresso su soggiorno, cucina abitabile, camera da letto e bagno. doppia esposizione. termoautonomo. posto auto. l'immobile è locato ideale per investimento - maggiori dettagli: provvisto di ascensore, porta blindata
un'opportunità unica ad un prezzo contenuto nel centro del rione canneto! questo ampio appartamento di tre vani, con cantina inclusa, è disponibile in vendita. perfetto per chi cerca una soluzione residenziale, con due camere da letto matrimoniali, salone, bagno, ripostiglio e cucina abitabile.…
proponiamo in vendita questo moderno appartamento ristrutturato di tre vani, soluzione perfetta per chi desidera vivere nel cuore della città. situato al quinto piano di un edificio con facciate ristrutturate e con ascensore, l'abitazione offre una superficie di circa 85 mq, ideale per una coppia…