
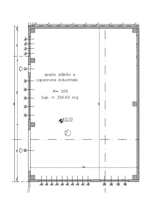
Giussano, comodo e ben servito con la SS36 Nuova Valassina, proponiamo NUOVO capannone in pronta consegna situato al piano terra di un contesto artigianale/industriale. La metratura (360 mq), l' altezza (5,55 m sotto trave) e la disposizione interna senza pilastri interni, permettono di ottenere uno spazio ampio e facilmente sfruttabile per la propria attività. Serramenti in alluminio a taglio termico, ampio spazio di manovra esterno con parcheggi, predisposizione per carroponte, pronta consegna!
Contattaci al 351.6353375 per ulteriori info o per un appuntamento!! Se preferisci (o se non ricevi risposta) inviaci un sms con i tuoi dati e sarà nostra premura ricontattarti appena possibile! Tutte le informazioni qui fornite sono da ritenersi puramente indicative e non costituiscono in alcun modo elemento contrattuale . I dati relativi alle superfici sono approssimative , non hanno valore contrattuale e non sono in alcun modo vincolanti nella trattativa di vendita e di locazione. I beni vengono venduti o affittati a corpo e non a misura. - Maggiori Dettagli: Doppi vetri, Serramenti in alluminio