
Zanč: in zona tranquilla di recente edificazione comoda al centro storico, costruenda porzione di bifamiliare caratterizzata da ampie metrature interne e buona porzione di giardino esclusivo.
L'immobile attualmente č allo stato grezzo avanzato, ma potrā essere consegnato anche completamente ultimato. Si articola su due piani: terra e primo. Gli accessi sono completamente indipendenti, sia il pedonale che il carraio.
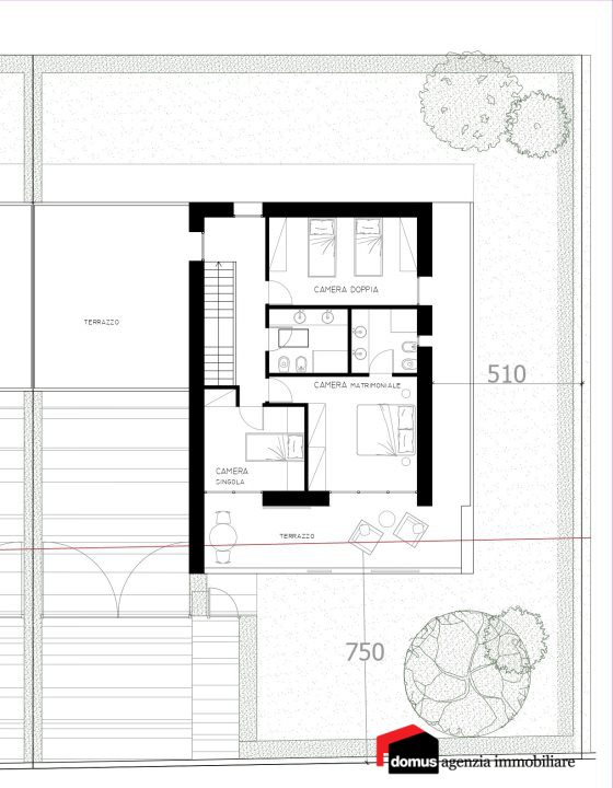
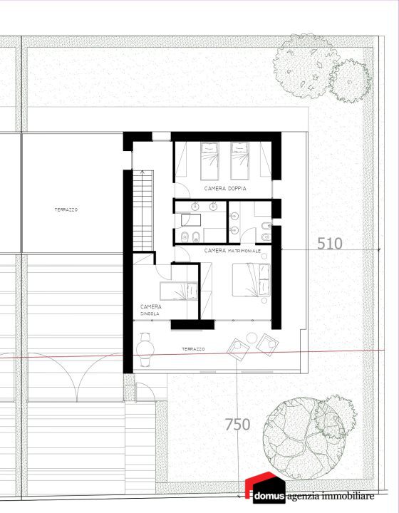
Al piano terra ci accoglie un'ampia zona giorno di circa 60 mq suddivisa in area salotto-Tv e zona dedicata alla cucina, entrambe con accesso all'ampio giardino circostante, un comodo bagno e una lavanderia con accesso diretto al garage doppio affiancato. Al piano primo invece, dedicato alla zona notte, trovano collocazione due ampie camere matrimoniali di cui una con proprio bagno privato e ampio poggiolo, una cameretta, un secondo bagno e un ampio terrazzo solarium.
La generositā della metratura interna, la presenza del giardino, l'apertura degli sazi esterni verso il verde circostante, la luminositā degli ambienti e il gusto contemporaneo, caratterizzano questo immobile davvero molto interessante.
Le due porzioni di bifamiliare sono semplicemente affiancate dal garage di ciascuna, e pertanto risultano davvero indipendenti e completamente autonome, proprio come due case singole.
Da vedere !
zanč: in fase di costruzione, favolosa porzione di bifamiliare composta da ingresso, ampia zona giorno con portico e accesso diretto al giardino, locale dispensa, disimpegno, lavanderia e bagno; al piano superiore tre camere e due bagni. completa l'abitazione un ampio garage per due auto…