
NEGOZIO in vendita a Lecco.
Affacciato su arteria di passaggio veicolare con collegamenti rapidi per le principali direttrici di traffico per Milano, Como, Bergamo e Milano.
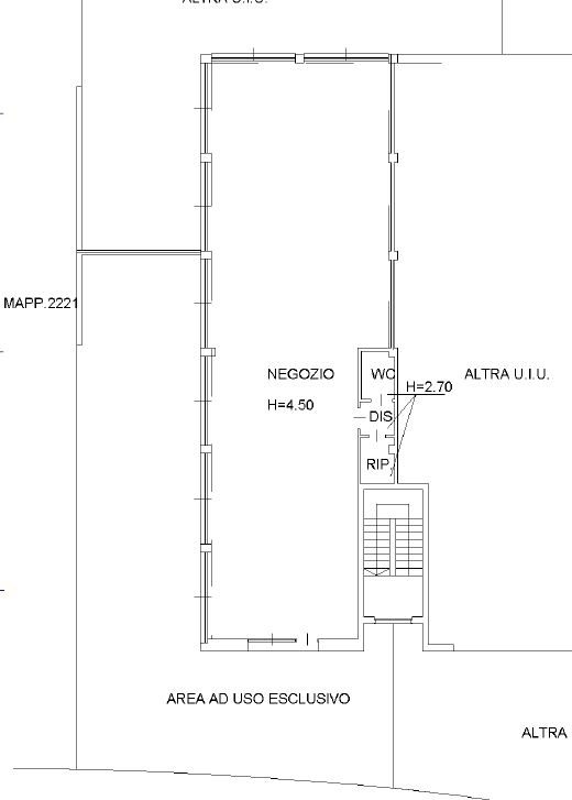
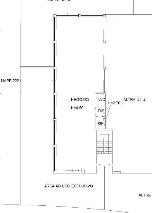
Beneficia di ampio ingresso con ante scorrevoli e grande vetrina fronte strada, di una altezza al soffitto di Mt. 4,50 con una superficie commerciale di circa mq. 200.
Si compone di ampio locale open space senza pilastri e/o barriere architettoniche, disimpegno, ripostiglio e bagno disabili.
Completa la proposta una zona di parcheggio in uso esclusivo antistante a servizio della unità stessa.
Completamente rimesso a nuovo ad eccezione del riscaldamento autonomo con pompa di calore caldo freddo che deve essere realizzato.
Attuale classe energetica G, indice di prestazione energetica 337,08. Rif. 225N
Per la tutela della Privacy, in alcuni casi su esplicita richiesta del venditore, gli indirizzi sono indicativi.
Per informazioni chiama subito Ufficio 0341.353.650. Cell. 335.840.1538.
Visita il sito www.immobiliripamonti.it
- Maggiori Dettagli: Animali Domestici , Fermata Bus
negozio a lecco. affacciato su arteria di passaggio veicolare con collegamenti rapidi per le principali direttrici di traffico per milano, como, bergamo e milano. composizione: si configura come un locale open space da circa 170 mq. ed altezza di ml. 3,50. comprensivo di bagno e antibagno.…