
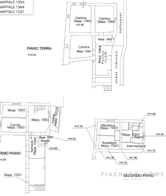
A Lorenzana, piccola frazione del comune di Tresana, terratetto composto da due unità abitative, entrambe accessibili da ampia terrazza comune. Completano l' abitazione principale ampie cantine e terreno poco distante dalle abitazioni di circa 4800 metri quadrati, in parte recintato e fornito di acqua.
Gli immobili sono stati completamente ristrutturati recentemente, dispongono di riscaldamento a pavimento, alimentato da inserto a pellet, pannelli solari e impianto fotovoltaico.
La prima unità è così composta: al piano primo camera da letto, bagno e cucina; al piano secondo due sottotetti adibiti a camere da letto, sgabuzzino e bagno.
La seconda unità si sviluppa solo al primo piano, è composta da cabina armadio, camera da letto, cucina e bagno. Dispone di impianto di climatizzazione con split in ogni ambiente.
Al piano terra due ampie cantine da ristrutturare e una pavimentata e ristrutturata, accessibile dalla strada principale.
L'immobile fa parte di un complesso di case in pietra in un piccolo borgo, dista 4 chilometri dai servizi e circa 30 minuti dal mare. La posizione rende questo territorio molto ambito grazie alla sua vicinanza alle Cinque Terre e alle stazioni sciistiche, senza rinunciare alla tranquillità che offre un paese contornato dal verde.
- Maggiori Dettagli: Camino, Porta blindata, Terreno
scopri il fascino di questa casa di paese da ristrutturare, situata in un incantevole paesino nel comune di tresana. con una superficie commerciale di 80 m², l'immobile si sviluppa su due piani e offre un piano terra con due cantine fresche e asciutte, perfette per conservare i tuoi vini o…
a348 barbarasco, caratteristica struttura in pietra disposta su più piani. composta al piano terra di cinque locali cantina voltati e giardino di 370 mq. piano primo composto di cucina, soggiorno, camera letto, bagno e ampia terrazza. piano secondo con accesso da scala interna composto di cucina,…
a365 tresana loc. lorenzana, in piccolo centro storico defilato dal rumore, ad un altezza di circa 380 m.s.l.m. proponiamo soluzione in centro storico composta di due unità abitative. a) abitazione composta di cucina, soggiorno, camera letto, due bagni, due locali sottotetto utilizzti come camere…