
Vendesi nel Comune di Poggibonsi (SI), in zona di campagna a 5 minuti dall'abitato, CAPANNA da ristrutturare posto al piano terra di mq 165 con resede esclusivo.
Il rudere può essere trasformato in abitazione con una ristrutturazione totale.
Adiacente all'immobile vi è un giardino di mq 50 e staccato dal rudere ci sono ulteriori mq 500 circa di giardino.
Classe energetica in lavorazione.
La nostra agenzia è strutturata per fornirvi, gratuitamente, assistenza per la richiesta di mutuo, notaio, tecnici e quanto necessario tramite gli istituti bancari ed i professionisti che collaborano con noi.
www.immobiliarecelardo.it
vendesi nel comune di poggibonsi (si), in prima campagna a 5 minuti dal centro abitato, porzione di casolare di mq 200 libero su tre lati. l'immobile, in tipico stile toscano, è composto da: al piano terra ampio e luminoso soggiorno, cucina abitabile, due camere, due bagni, due ripostigli e ampio…
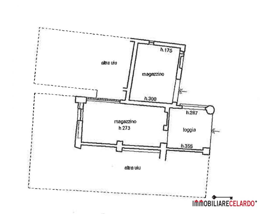
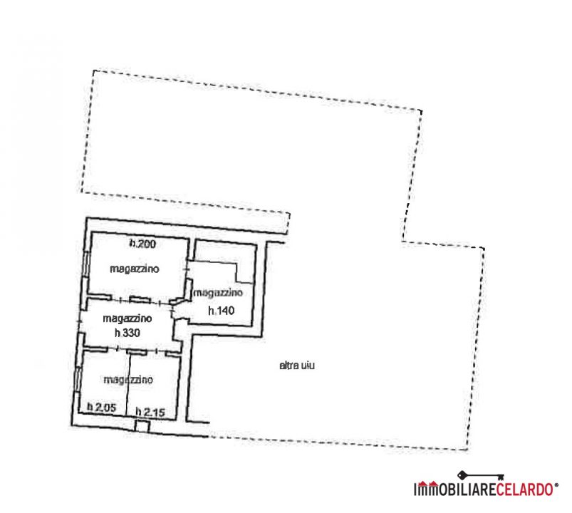
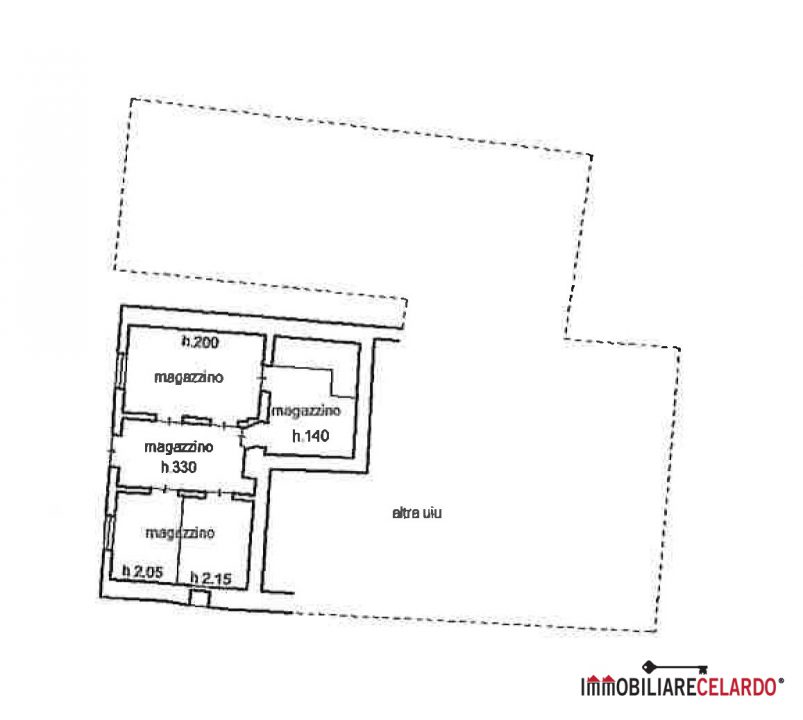
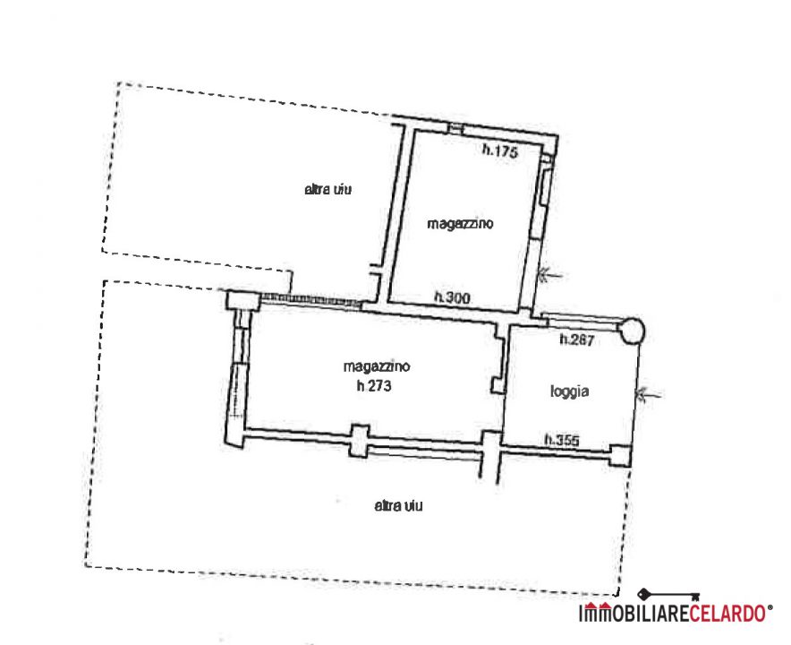
vendesi nel comune di poggibonsi (si), in prima campagna e a pochi minuti dall'abitato, casolare da ristrutturare. la proprietà comprende: - un magazzino di mq 52 posto al piano terra; - una capanna di mq125 su due livelli (piano terra e piano primo) trasformabile in villetta libera su 4 lati; …