
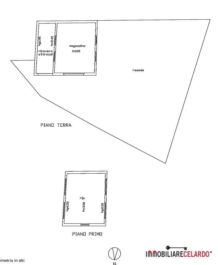
Vendesi nella campagna di Casole d'Elsa (SI), CAPANNA in pietra di 136 mq libera su 4 lati, con parco privato di circa 3000 mq.
Il rudere è composto da un corpo di fabbrica principale con sviluppo su due piani per un totale di 112 mq, ha copertura a capanna, aperture ad arco sul fronte principale e grigliati in mattoni sugli altri prospetti.
Addossato al fabbricato c'è un ricovero attrezzi di 24 mq con sviluppo su un solo piano.
L'immobile è totalmente circondato dal verde delle splendide campagne toscane.
La nostra agenzia è strutturata per fornirvi, gratuitamente, assistenza per la richiesta di mutuo, notaio, tecnici e quanto necessario tramite gli istituti bancari ed i professionisti che collaborano con noi.
www.immobiliarecelardo.it
vendesi a casole d'elsa (si), in porzione di casolare, appartamento totalmente ristrutturato di mq 80 con ingresso indipendente più soppalco di mq 19. l'immobile si compone: - al piano terra da soggiorno/pranzo con angolo cottura e camino - al piano primo da camera matrimoniale, una stanza…
vendesi nel comune di casole d'elsa (si), nei pressi di lucciana, villetta terratetto di mq 130 (di cui mq 60 il piano terra e mq 70 il piano primo). l'immobile è così composto: al piano terra ampio soggiorno/cucina, bagno, ripostiglio e corte di mq 80 dotata di forno a legna. al piano primo tre…
vendesi nel comune di casole d'elsa (si), in prima campagna e a pochi minuti dal centro, intera proprietà formata da 5 casali di cui 4 allo stato grezzo e 1 finito per un totale di mq 830. l'intera proprietà è circondata da circa mq 10.000 di giardino. n.b. tutti i casali sono trasformabili in…