
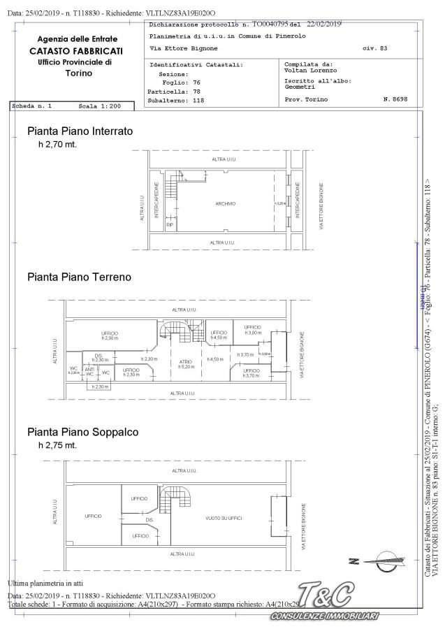
Centro LE MACINE, proponiamo in vendita ampio ufficio con soppalco, e sala riunioni al piano interrato. Dotato di cablaggio, pavimento flottante, pareti mobili e arredamento.
Per informazioni e visite 335 7044302. - Maggiori Dettagli: Climatizzato, Sistema di allarme