
VILLE IRIS è una nuova realizzazione posizionata in una delle zone residenziali più belle e richieste di Parabiago identificata come Ravello-oltre ferrovia. L'intervento vede la realizzazione di sei ville singole, suddivise in due lotti da tre unità di varie metrature, tutte dallo stile moderno ed essenziale, indipendente una dalle altre. Le abitazioni saranno in CLASSE ENERGETICA A, dotate delle tecnologie costruttive di ultima generazione in tema di risparmio energetico. Ogni villa sarà disposta su due piani, terra e primo, con grandi giardini, porticati e terrazzi al piano primo, oltre box doppi. Ogni abitazione è da personalizzare nella scelte delle finiture quali pavimenti, rivestimenti e porte interne.
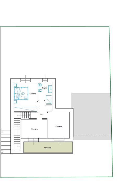
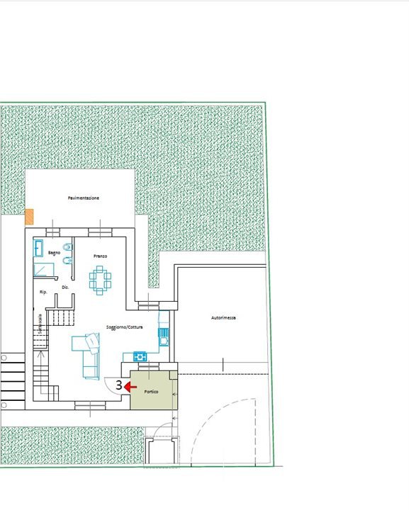
VILLA 3 - € 570.000. Villa di 155 mq, Giardino di 220 mq, Porticati di 26 mq e Terrazzo di 11 mq. Abitazione così suddivisa: piano terra ben 80 mq con ingresso su ambia zona living, cucina abitabile o aperta a preferenza del cliente servita da porticato, disimpegno, camera matrimoniale e bagno; piano primo di 75 mq con camera matrimoniale, camera doppia servita da terrazzo, camera singola e bagno. Il giardino di 220 mq circonda i quattro lati della casa. Il box è doppio in larghezza. - Maggiori Dettagli: Cucina Abitabile, Porta blindata
posta in zona semicentrale, comodissima per il centro, la stazione, le scuole ecc, villa singola dei primi anni '90 di grande metratura distribuita su unico livello. l'abitazione di ben 235 mq si compone da ingresso, soggiorno con camino, sala da pranzo, cucina abitabile, cinque camere di cui una…
residenza ville alba, porzioni di villa bifamiliare in classe a in pieno centro! le due ville, poste nel pieno centro della cittadina, godono ciascuna di ingressi da due vie distinte che assicurano totale indipendenza e riservatezza! progettata con architettura contemporanea, sono costruire con…
posta nella zona residenziale più signorile e richiesta di parabiago, villa di nuova costruzione, ad alta tecnologia costruttiva classificata nella più alta classe energetica a4! l'abitazione, con finiture interne da personalizzare, è di grande metratura, si suddivide su due piani, per un totale di…