
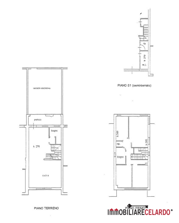
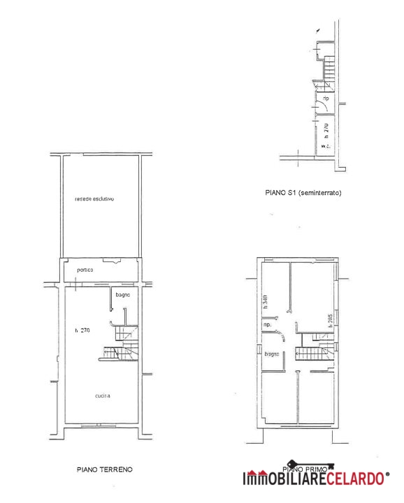
Vendesi nel Comune di Colle di val d'Elsa (SI), in zona semicentrale, VILLETTA TERRATETTO di mq 224 (di cui mq 74 il piano terra, mq 89 il piano primo, mq 61 il garage)
L'immobile è composto da:
al piano terra ampio soggiorno/cucina, bagno e resede esclusivo di mq 67;
al piano primo da 4 camere, bagno e ripostiglio;
al piano seminterrato da bagno, ripostiglio e garage doppio con accesso sia interno che esterno.
Classe energetica in lavorazione.
La nostra agenzia è strutturata per fornirvi, gratuitamente, assistenza per la richiesta di mutuo, notaio, tecnici e quanto necessario tramite gli istituti bancari ed i professionisti che collaborano con noi.
www.immobiliarecelardo.it
- Maggiori Dettagli: Cucina Abitabile, Camino
vendesi a colle di val d'elsa (si), in prima campagna, capanno da demolire e ricostruire per ricavare villa indipendente di mq 140 (di cui 120 abitazione e 20 seminterrato) e libera su 4 lati. l'immobile è composto da: al piano terra ampio e luminoso soggiorno/pranzo e ripostiglio; al piano primo,…
vendesi nel comune di colle di val d'elsa (si), in prima campagna ma a pochi minuti dal centro, un casolare da ristrutturare totalmente, ma con le porzioni delle mura originali rimaste in ottime condizioni di staticità, non è necessario rifare le fondazioni. la zona dove è ubicato è di pregio ed…
l'immobile attualmente si trova allo stato di grezzo avanzato, per ultimarlo saranno necessaria una spesa di circa 200.000 €, mancano da eseguire: le rifiniture quali pavimentazioni, rivestimenti di bagni e cucina ed infissi interni, tutti gli impianti. vendesi nel comune di colle di val…