
Per chi desidera una villa singola signorile in ottime condizioni, con giardino pianeggiante e la possibilità di inserimento di una piscina panoramica con vista sulla sottostante Brianza.
Ottimo rapporto qualità prezzo, con soluzioni abitative personalizzate, rappresenta una soluzione ideale per una famiglia che ama la casa e vivere in un immobile comodo, confortevole, ideale per tutte le età e per una famiglia con genitori, figli e nonni.
Immersa nel verde e nella tranquillità della zona residenziale con la migliore esposizione della piccola località, è stata mantenuta con amore ed in eccellenti condizioni dalla attuale proprietà.
UBICAZIONE:
Ello zona Trescano.
CONTESTO:
Residenziale e signorile immersa nel verde e nella privacy, ma nel contempo a pochi passi dal centro di Oggiono, da altre ville e piccoli contesti residenziali.
Anno di realizzazione 2004
COMPOSIZIONE:
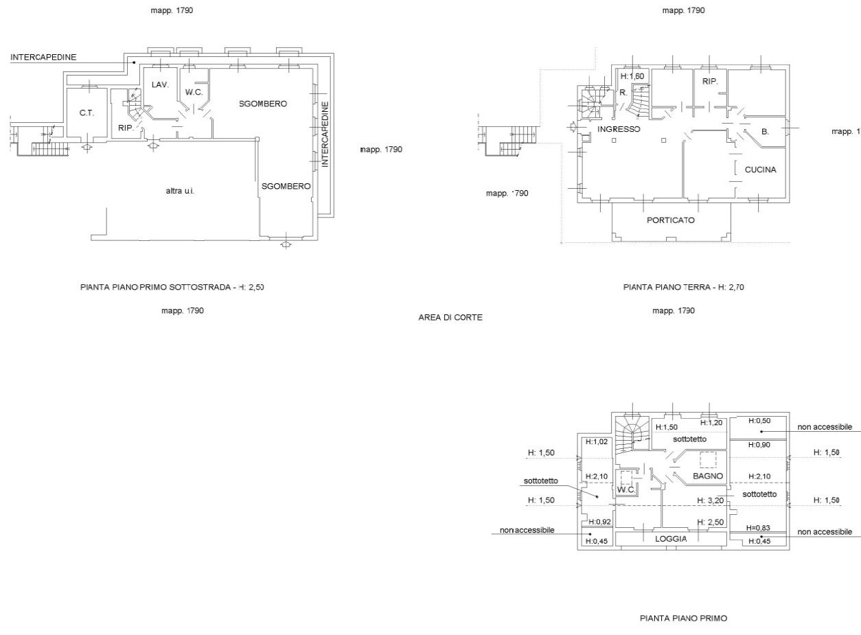
La villa consta di una superficie di circa 400 Mq. ed una superficie del lotto comprendete il giardino di circa mq. 1.600.
Dislocata su tre livelli, con accesso carraio ed accesso pedonale, si compone:
Piano primo, salone con camino ventilato affacciato sul terrazzo vivibile coperto, cucina abitabile, sala da pranzo, disimpegno notte, camera matrimoniale, bagno padronale, ripostiglio lavanderia, studio, locale guardaroba.
Piano secondo, due camere, due bagni, terrazzo panoramico, tre locali a disposizione ideali per studio, guardaroba e locale hobby.
Al Piano terra, grande locale a disposizione con camino affacciato direttamente sul giardino e sul cortile da destinare a posti auto, bagno, lavanderia, ripostiglio, centrale termica.
Box plurimo per il ricovero di 4 - 6 auto.
PRINCIPALI CARATTERISTICHE:
Predisposizione impianti per la realizzazione della piscina, irrigazione giardino, videosorveglianza, antifurto perimetrale e volumetrico, predisposizione filodiffusione, impianto aspirapolvere centralizzato, serramenti legno alluminio blindati, tv satellitare e video citofono.
RISCALDAMENTO E CLASSE ENERGETICA:
Riscaldamento autonomo con caldaia turbo, classe energetica E, indice di prestazione energetica 159,74.
Rif. 102V.
Per la tutela della Privacy, in alcuni casi su esplicita richiesta del venditore, gli indirizzi sono indicativi. - Maggiori Dettagli: Vista panoramica, Giardino Privato, Balcone, Porta Blindata, Cucina Abitabile, Taverna, Animali Domestici , Terrazzo Panoramico
villa singola a ello. località marconaga, in posizione panoramica affacciata su tutta la brianza. ideale per chi ama la tranquillità, il verde e le passeggiate all'aria aperta, senza rinunziare alle comodità della città ed a tutti i suoi servizi, facilmente raggiungibili in auto verso la cittadina…
villa singola a ello. località marconaga, in posizione panoramica affacciata su tutta la brianza. ideale per chi ama la tranquillità, il verde e le passeggiate all'aria aperta, senza rinunziare alle comodità della città ed a tutti i suoi servizi, facilmente raggiungibili in auto verso la cittadina…
villa singola in vendita a ello. recente villa singola in zona panoramica, affacciata sulla brianza. dislocata su tre livelli rappresenta una soluzione ideale per una famiglia che ama la casa e vivere un ambiente accogliente, comodo e confortevole, ideale per tutte le età e per una famiglia con…