
INTERO FABBRICATO INDIPENDENTE
EX SEDE DELL'ANTICA "TRATTORIA GERLI" DEL 1500
In una zona tranquilla e immersa nel verde, a soli 10 minuti da Trezzano sul Naviglio e circa 20 minuti da Milano, è in vendita un'intera proprietà dal fascino autentico, un tempo sede di un'antica trattoria.
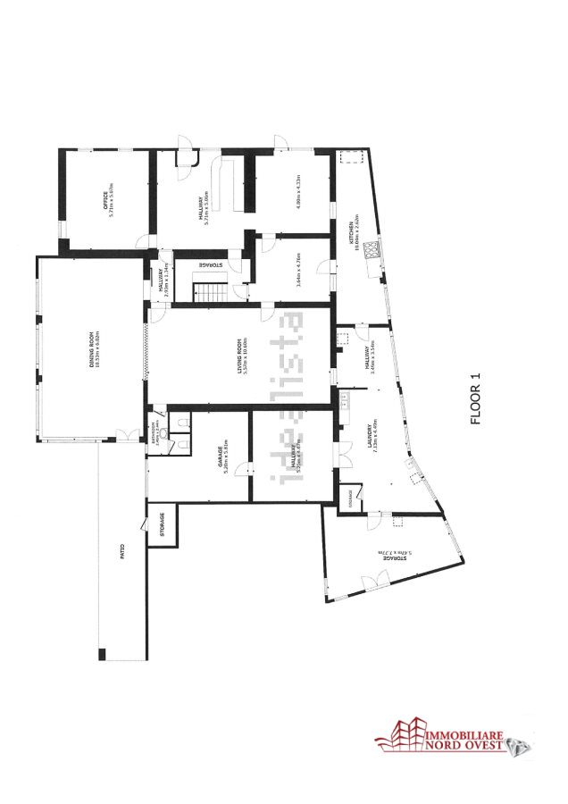
L'immobile principale, di circa 700 mq disposti su due livelli, si distingue per gli ampi spazi e le molteplici potenzialità. Al piano terra si trova con circa 300 mq ad uso commerciale trasformabile in abitativo, inoltre si apre un grande porticato, perfetto per momenti di relax o convivialità, mentre al primo piano si trovano due spaziosi appartamenti ed un ampio terrazzo che regala una piacevole vista sul paesaggio circostante.
La struttura si presta a diverse destinazioni d'uso, con la possibilità di suddividerla in più unità abitative o, all'occorrenza, di mantenere parte dell'edificio a uso commerciale.
Completano la proprietà un box, due spaziosi ripostigli esterni e un'area verde di circa 2.000 mq, completamente recintata. Uno spazio ideale per chi ama la natura, gli animali e desidera vivere lontano dallo stress della città, senza rinunciare alla comodità dei collegamenti con Milano.
LE IMMAGINI DEGLI INTERNI SONO STATE ELABORATE DIGITALMENTE (VIRTUAL DECLUTTERING) PER MOSTRARE LE POTENZIALITÀ DEGLI SPAZI E FACILITARE LA PERCEZIONE DEI VOLUMI - Maggiori Dettagli: Cantina