
Villa bifamiliare ad OGGIONO.
Realizza i tuoi sogni ultimando la tua nuova villetta bifamiliare come desideri, secondo le tue specifiche esigenze abitative.
UBICAZIONE:
Oggiono Località Imberido, affacciata sulla brianza ed i suoi laghi.
CONTESTO:
Residenziale tranquillo e signorile, soleggiato ed immerso nel verde. Garantisce facili collegamenti con Oggiono e Galbiate, la tutela della privacy e della sicurezza della tua famiglia.
COMPOSIZIONE:
Tre livelli collegati da scala interna, con GIARDINO completamente pianeggiante che contorna la villa.
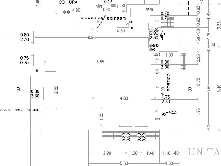
Piano Terra: Ingresso, soggiorno con angolo cottura affacciati su un grande patio coperto, camera matrimoniale e bagno.
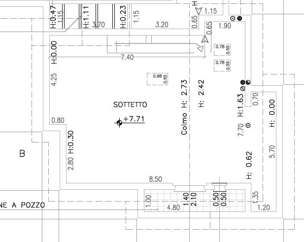
Piano Primo: Possibilità di realizzazione al P. 1 sottotetto di alcuni locali sulla base delle esigenze del cliente.
Piano Seminterrato: Taverna, locale a disposizione, locale caldaia, box doppio e posto auto di proprietà esterno.
CLASSE ENERGETICA:
Classe energetica A.
Rif. 122D
Per la tutela della Privacy, in alcuni casi su esplicita richiesta del venditore, gli indirizzi sono indicativi.
Per informazioni chiama subito Ufficio 0341.353.650.
- Maggiori Dettagli: Vista panoramica, Vista lago, Giardino Privato, Balcone, Porta Blindata, Taverna, Climatizzato, Animali Domestici , Giardino Alberato , Terrazzo Panoramico
villa bifamiliare in vendita a oggiono. posta in zona panoramica e soleggiata con vista sulla brianza ed i suoi laghi, viene proposta al rustico, il che permette di ultimare la realizzazione secondo le proprie specifiche esigenze ed i gusti personali del cliente finale. ubicata in contesto…